В Екатеринбурге на месте завода «Уралкабель» построят высотное жилье и школу
17 марта 2023, 16:36
Землю будут осваивать больше 10 лет.
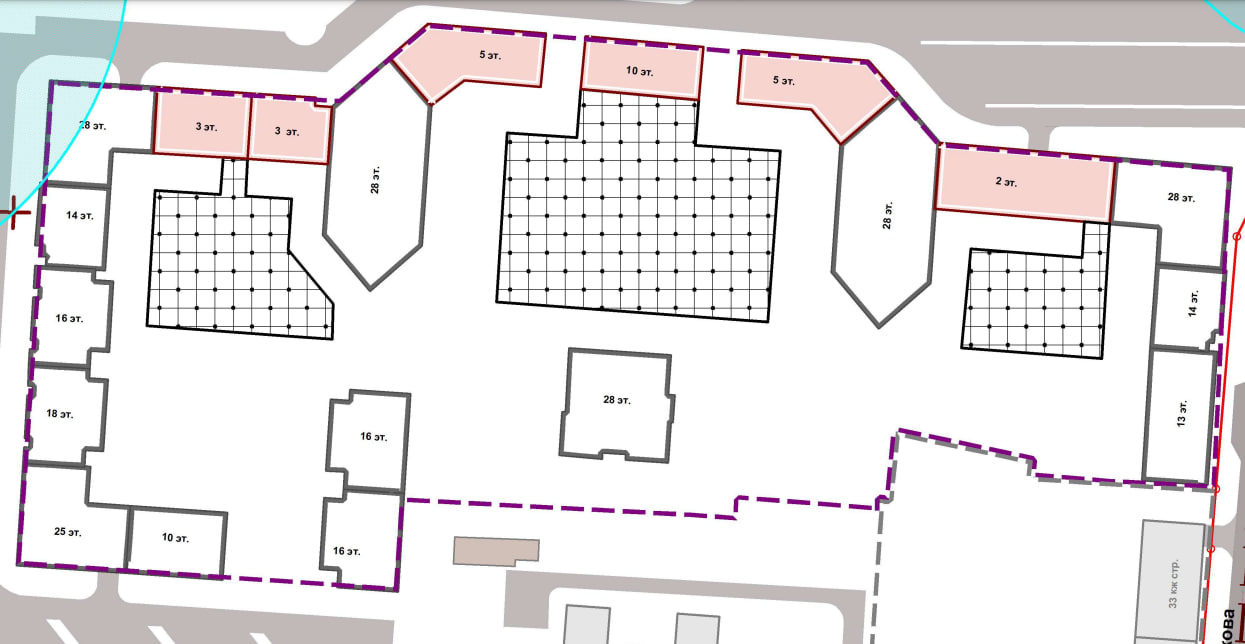
В Екатеринбурге на месте завода «Уралкабель» до 2035 построят почти 250 тысяч «квадратов» жилья. Участок освоит компания «УГМК-Застройщик», которая на соседнем участке возводит ЖК «Нагорный».
Проекты планировки и межевания территории, разработанные по заказу девелопера, выставили на общественные обсуждения. Из документации следует, что на освобожденной территории возведут дома высотой до 28 этажей, школу и несколько детских садов. Проживать в новом квартале смогут более 8 тысяч человек.

Горожане могут оставить свои пожелания и возражения к проектам до 28 марта. Итоги общественных обсуждений подведут после 7 апреля.
17 марта 2023, 16:36